Header + Logo der Firma Gerriet Funk Baumontagen und Akustikbau, Berlin
Back Back Back
                Product information
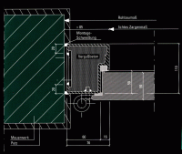
On this page you'll find examples of our used products and our applied techniques. To look at the pictures in full size and get closer informations, just click on the particular illustration!
Product information No. 1 Product information No. 2 Product information No. 3
Product information No. 4 Product information No. 5 Product information No. 6
Product information No. 7 Product information No. 8 Product information No. 9